|
|
|
|
|
 
Catch up on the ARC saga by reading these stories:
 
Lower Providence township manager testifies
Legal bills spark conflict
Museum advocates present witness
Planner: Still spot zoning
Testimony criticizes proposed ARC
Zoning battle renews
Judge denies bond request
Testimony: $25.4M equals one-year delay
Developers, opposition head to court; ARC wants bond to cover construction delay costs
Legal battles go on
Conditional use gets the OK
Nonprofit developer contributes $3 million
Commissioners: No support for ARC without pedestrian causeway
ARC plans open house
ARC officials still planning on a 'win-win'
ARC officials reject new plan
Declaration on ARC limits becomes part of public record
Substantive challenge to ARC off table - for now
Legal dispute at ARC hearing
Legal challenge concerning proposed ARC to resume
ARC challenge receives a six-week respite
Overlay ordinance appealed by residents, conservation group
Public opinion mixed on American Revolution Center
Marching toward American Revolution Center
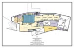
Click Images for larger views of the plans:


| |
|
|
|